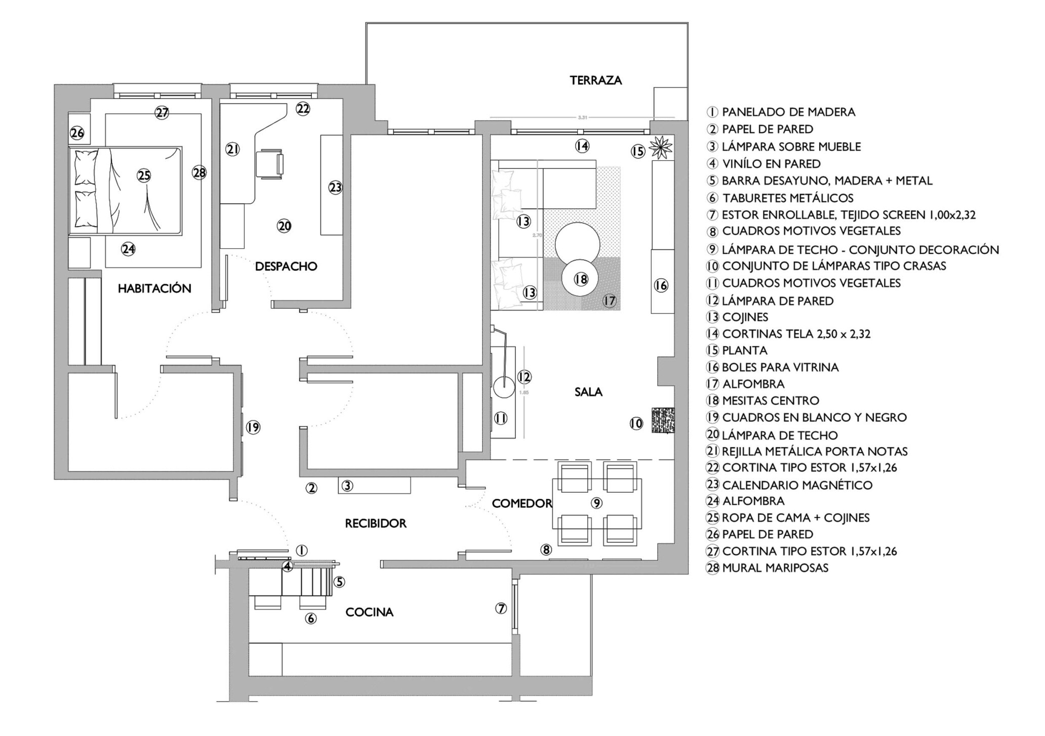
Proyecto de decoración interior para vivienda situada en Tarragona. Restyling interior integrando mobiliario existente con nueva decoración para conseguir espacios cálidos y confortables.

TipoRestyling decoración de interiorUbicaciónTarragonaSuperficie140m2Año2018FotógrafoJose Manuel Montalbán

Otros proyectos

Vivienda Cala Tamarit


Ubicada en el idílico entorno de Cala Tamarit, esta vivienda ha sido concebida para integrarse con su paisaje,…

Vivienda Músicos


Se trata de un proyecto pensado para la persona que lo habita, donde los espacios se integran creando una atmósfera de…

Vivienda Torredembarra


Proyecto de interiorismo y dirección de obra, para rehabilitación integral con cambio de uso de un espacio que en…